Большой опыт
АКВА-МАСТЕР
ОБОРУДОВАНИЕ ДЛЯ ЗАГОРОДНОГО ПРОЖИВАНИЯ
Справедливые цены
Гарантийный сервис
Монтаж за 1 день
АКЦИИ И СКИДКИ
Септики биологические BEST
Материал корпуса - стеклопластик
Анаэробный септик – очистное сооружение, которое использует для очистки бытовых стоков анаэробные микроорганизмы, и бактерии (анаэробы – это организмы, для жизнедеятельности которых не требуется кислород). Устройство представляет собой герметичный резервуар, разделенный на несколько камер для микробиологической очистки канализационных вод. Бактерии взаимодействуют с органическими соединениями в составе стоков, разлагая их на более простые вещества и неорганику. При этом уровень концентрации бактерий поддерживается естественным путем, из-за их размножения.
Большинство анаэробных септиков состоят из двух камер со следующими задачами:
- Первая – разделение сточных вод на взвешенные части и твердый осадок, которые опускаются на дно.
- Второй – биологическая фильтрация веществ в среде анаэробных микроорганизмов.
В процессе переработки бактерии выделяют большое количество газов, в том числе углекислоту, сероводород, метан и аммиак. Эти продукты жизнедеятельности выводятся через вентиляционную систему. Работа бактерий сопровождается выделением определенного количества тепла, поэтому септик может работать круглогодично, без угрозы замерзания даже в сильные морозы.
Главная особенность анаэробных септиков – энергонезависимость. Для бактерий не требуется кислород, поэтому можно обойтись без компрессора, а переход жидкости между камерами происходит самотеком, по ходу поступления новых стоков. При этом очистка вод недостаточна для их прямого сброса на грунт – для этого необходимо проводить доочистку в дренажных полях, колодцах и ямах.
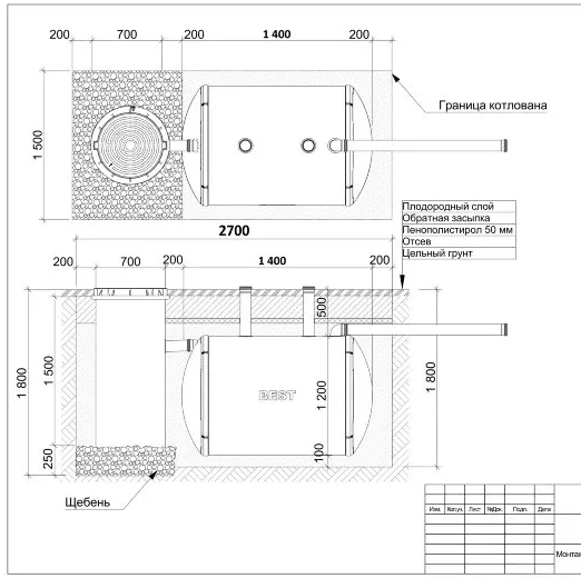
Двух камерный септик для постоянного проживания до трех человек. Степень очистки до 70%. Возможна комплектация насосом, для отведения воды в случае высокого уровня грунтовых вод. Глубина заложения до 2х метров. Простая в монтаже и обслуживании конструкция.

Септик BEST 3
Ширина, м. 1.2
Высота, м. 1.2
Длина, м. 1.4
Количество проживающих чел. 2-3
Производительность 0.6 м3 в сутки
Глубина залегания подводящей трубы 0,3 — 1 м.
ДОПОЛНИТЕЛЬНОЕ ОБОРУДОВАНИЕ:
Дренажный колодец - 16000 руб система принудительной откачки сточных вод 19000 руб
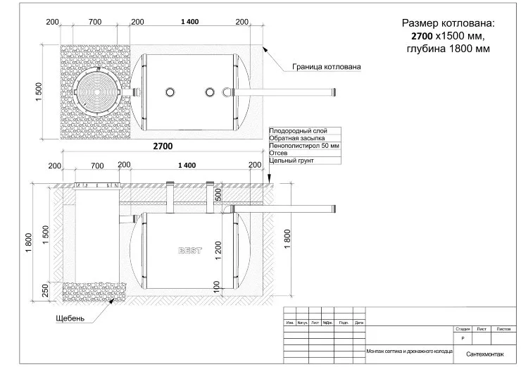
Двух камерный септик. Степень очистки до 70%. Возможна комплектация насосом, для отведения воды в случае высокого уровня грунтовых вод. Глубина заложения до 2х метров. Простая в монтаже и обслуживании конструкция.
Материал корпуса Стеклопластик
Цена: 41 500 руб

Септик BEST 4
Ширина, м. 1.2
Высота, м. 1.2
Длина, м. 1.9
Количество проживающих чел. 4
Производительность 0.8 м3 в сутки
Глубина залегания подводящей трубы 0,3 — 1 м.
ДОПОЛНИТЕЛЬНОЕ ОБОРУДОВАНИЕ:
Дренажный колодец - 16000 руб
система принудительной откачки сточных вод - 19000 руб
Четырех камерный септик для постоянного проживания. Степень очистки до 70%. Возможна комплектация насосом, для отведения воды в случае высокого уровня грунтовых вод. Глубина заложения до 2х метров. Простая в монтаже и обслуживании конструкция.
Цена: 51 000 руб

Септик BEST 6
Ширина, м. 1.2
Высота, м. 1.2
Длина, м. 2.8
Количество проживающих чел. 6
Производительность 1.2 м3 в сутки
Глубина залегания подводящей трубы 0,3 — 1 м.
ДОПОЛНИТЕЛЬНОЕ ОБОРУДОВАНИЕ:
Дренажный колодец - 16000 руб
система принудительной откачки сточных вод - 19000 руб
Четырех камерный септик для постоянного проживания. Степень очистки до 70%. Возможна комплектация насосом, для отведения воды в случае высокого уровня грунтовых вод. Глубина заложения до 2х метров. Простая в монтаже и обслуживании конструкция.
Цена: 64 000 руб

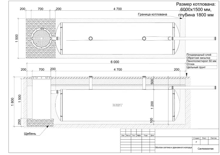
Септик BEST 8
Ширина, м. 1.2
Высота, м. 1.2
Длина, м. 3.7
Количество проживающих чел. 8
Производительность 3.2 м3 в сутки
Глубина залегания подводящей трубы 0,3 — 1 м.
ДОПОЛНИТЕЛЬНОЕ ОБОРУДОВАНИЕ:
Дренажный колодец - 16000 руб
система принудительной откачки сточных вод - 19000 руб
Четырех камерный септик для постоянного проживания. Степень очистки до 70%. Возможна комплектация насосом, для отведения воды в случае высокого уровня грунтовых вод. Глубина заложения до 2х метров. Простая в монтаже и обслуживании конструкция.
Цена: 77000 руб

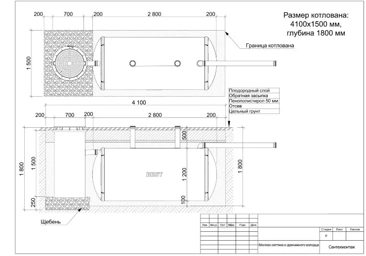
Септик BEST 10
Ширина, м. 1.2
Высота, м. 1.2
Длина, м. 4.7
Количество проживающих чел. 12
Производительность 3.8 м3 в сутки
Глубина залегания подводящей трубы 0,3 — 1 м.
ДОПОЛНИТЕЛЬНОЕ ОБОРУДОВАНИЕ:
Дренажный колодец - 16000 руб
система принудительной откачки сточных вод - 19000 руб
Четырех камерный септик для постоянного проживания. Степень очистки до 70%. Возможна комплектация насосом, для отведения воды в случае высокого уровня грунтовых вод. Глубина заложения до 2х метров. Простая в монтаже и обслуживании конструкция.
Цена: 87 000 руб
Дополнительные опции: Дренажный колодец, система принудительной откачки сточных вод.
ВЫЕЗД ИНЖЕНЕРА ДЛЯ ПОДБОРА ОБОРУДОВАНИЯ БЕСПЛАТНО
Контактная информация
- Тюменская область, Тюменский р-он, п. Боровский, ул. Герцена, 52, 3 этаж
- +7 (991) 909-65-80
- septic.72@mail.ru
- Отдел сервисного и гарантийного обслуживания, п. Боровский, Герцена, 52
- +7 (932) 485-95-57
- neon.tyumen@mail.ru
Корзина пуста
0
шт.
/
0 руб.
Оформить
Очистить









