Большой опыт
АКВА-МАСТЕР
ОБОРУДОВАНИЕ ДЛЯ ЗАГОРОДНОГО ПРОЖИВАНИЯ
Справедливые цены
Гарантийный сервис
Монтаж за 1 день
АКЦИИ И СКИДКИ
СТАНЦИИ ТОПАС
ТОПАС - УСТАНОВКА ОЧИСТКИ СТОЧНЫХ ВОД ДЛЯ ЗАГОРОДНОГО ДОМА, ДАЧИ, КОТТЕДЖА, ГРУППЫ ДОМОВ (ДВА КОМПРЕССОРА)
Установка очистки сточных вод «ТОПАС» - одно из лучших решений для загородной канализации. В основе её работы лежит гибридный метод, сочетающий биологическую и механическую очистку стоков. На выходе сточные воды становятся прозрачными, отсутствует неприятный запах. Высокое качество очистки и безопасность для окружающей среды подтверждены соответствующими сертификатами.
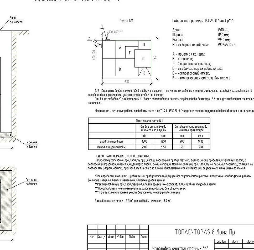
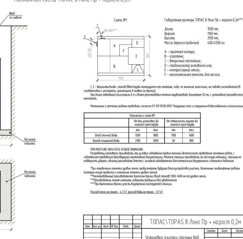
Пр – установка со встроенным насосом принудительного отвода очищенного стока. Применяется для участков с высоким уровнем грунтовых вод.
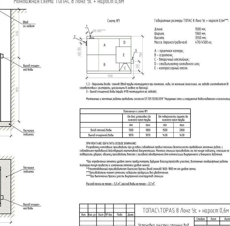
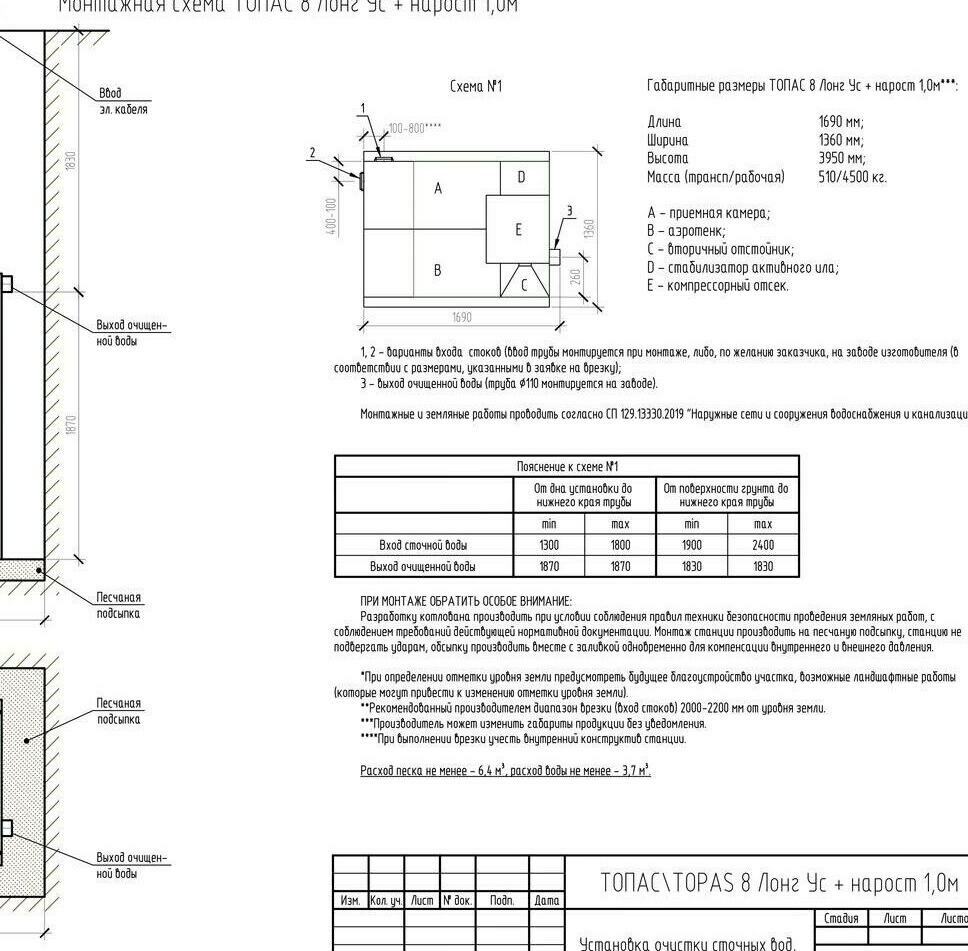
Лонг – установка с удлиненной горловиной (имеет врезной диапазон больше, чем стандартные станции). Применяется, когда канализационная труба, выходящая из здания, залегает на глубине свыше 85 см от поверхности грунта.
Ус – установка с дополнительным усилением корпуса (имеет врезной диапазон больше, чем станции модификации Лонг). Применяется для участков с высоким давлением грунта и в случаях, когда канализационная труба, выходящая из здания, залегает на глубине свыше 140 см от поверхности грунта.
Простота монтажа
Монтаж в любых типах грунта и при любых уровнях грунтовых вод
Экономичность
Не требуется закупка дополнительных бактерий
Высокое качество сервиса
Круглосуточная поддержка клиентов на протяжении года
Эффективность
Перерабатывает стоки, а не аккумулирует их
Простота обслуживания
Не требуется вызов ассенизаторской машины
Экологичность
Высокая степень очистки воды до 98%
Качество продукции
Срок службы корпуса не менее 50 лет
Комфорт
Отсутствие неприятных запахов
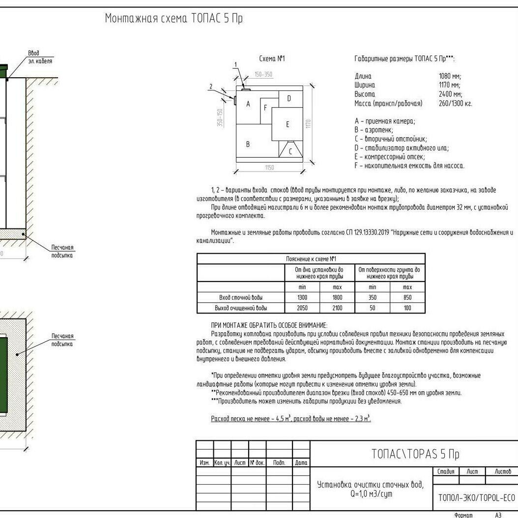
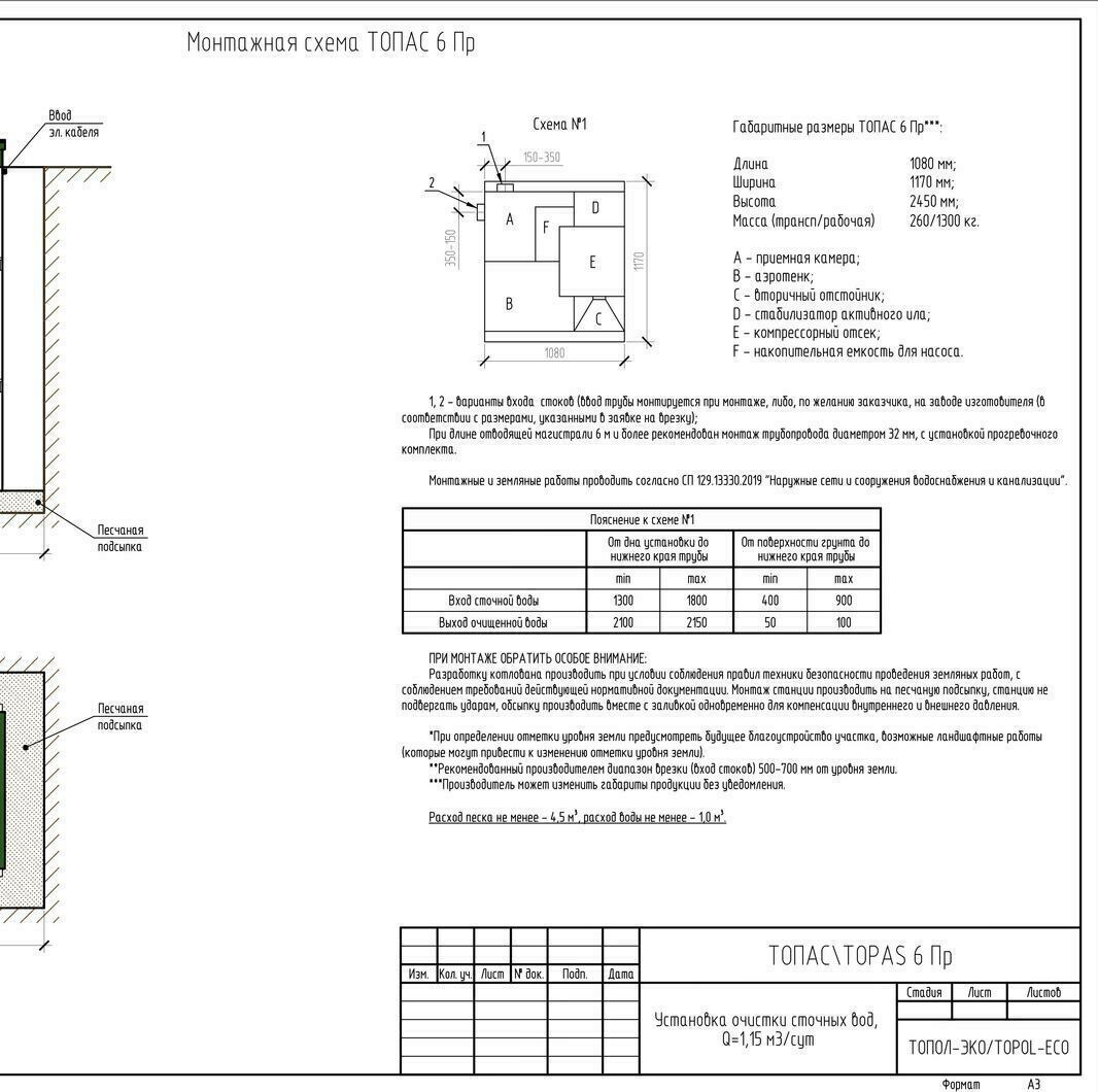
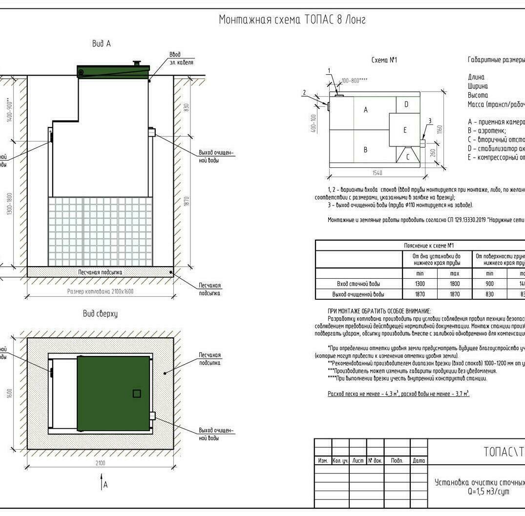
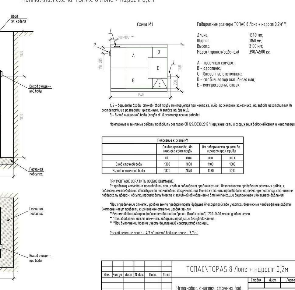
Установка очистки сточных вод «ТОПАС» предназначена для биологической очистки хозяйственно-бытовых стоков, как для частных домохозяйств, так и для загородных поселков различного типа. Внутренне устройство станции состоит из приемной камеры, камеры аэротенка, вторичного отстойника, стабилизатора ила и герметичного компрессорного отсека.
Работа установки «ТОПАС» основана на биологической очистке, разрушении органических соединений путем их окисления. Все процессы, необходимые для качественной очистки сточных вод, автоматизированы. Корпус изготовлен из пищевого полипропилена, срок службы более 50 лет. Материал не меняет своих свойств и не подвержен коррозии.
Если в вашем загородном доме, в коттедже или на даче проживают от 1 до 4 человек, а из сантехники установлены душевая кабина, унитаз и две раковины, то Вам подойдет установка ТОПАС-С 4. Это система автономной канализации, предназначенная для круглогодичного или сезонного использования. Максимальный единовременный прием стоков, то есть тот объем воды, который ТОПАС-С 4 может принять в течение короткого промежутка времени, составляет 175 литров.
Монтаж станции производится в любом типе грунта при любом уровне грунтовых вод.
Установка очистки сточных вод «ТОПАС» создана для тех, кто ответственно подходит к решению вопроса с отведением сточных вод, стремится не только обеспечить комфорт себе и своим близким, но также заботится о водных ресурсах планеты и состоянии окружающей среды в целом.


Автономная канализация ТОПАС 4
Производительность0,8 м3/сутки
Количество пользователей≈4 человек
лубина залегания трубы35-85 см
Объём залпового сброса175 л
Потребляемая электроэнергия1.0-1,5 кВт*сут
Вес210 кг Габариты0,95 / 0,97 / 2,4 м д / ш / в
Гарантия на корпус очистного сооружения – 10 лет Гарантия на компрессорное оборудование – 3 года (комплект сменной мембраны в подарок)раткое описание
158600
руб.
Подробнее
Купить

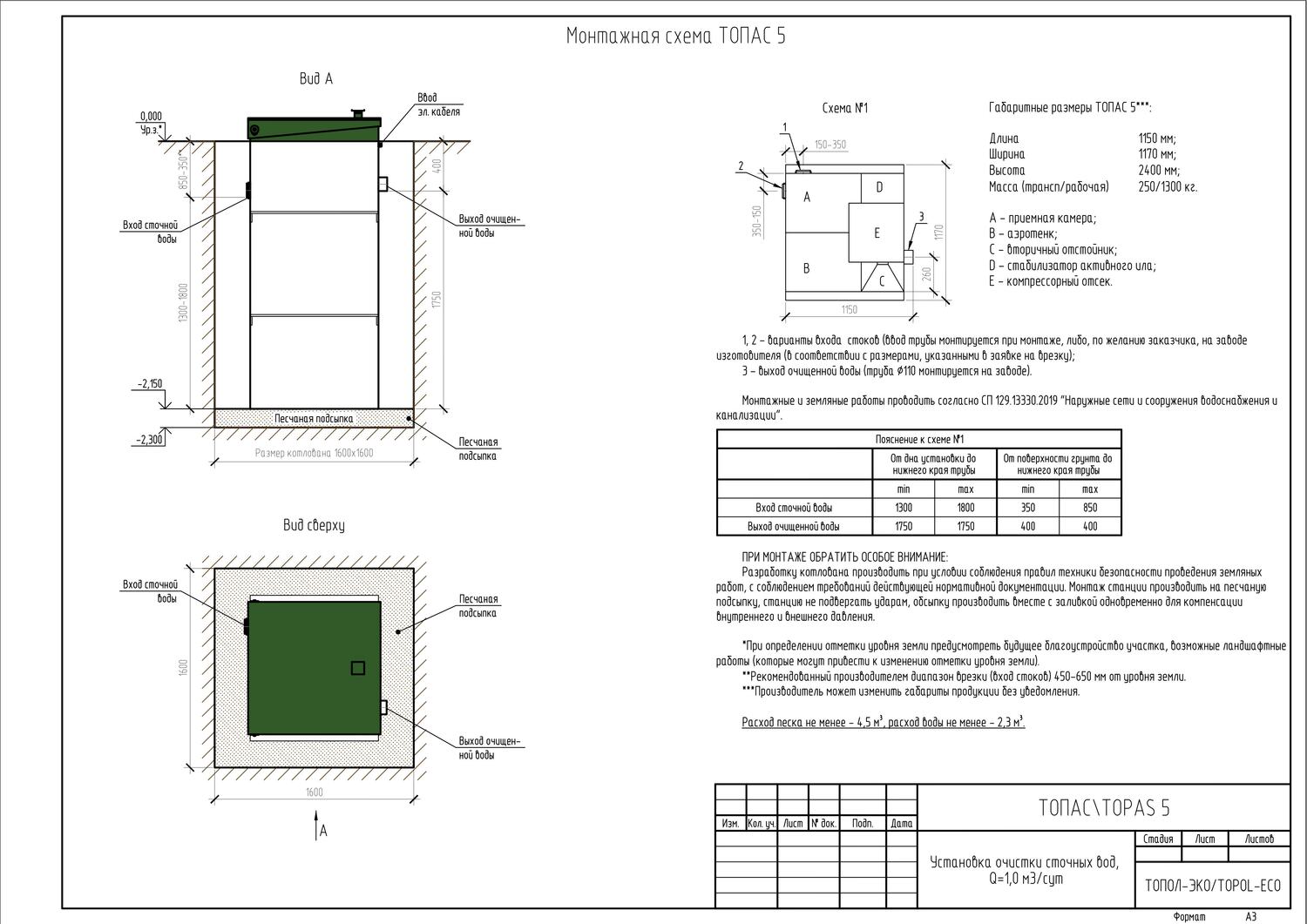
Автономная канализация ТОПАС 5
Производительность1,0 м3/сутки Количество пользователей≈5 человек
Глубина залегания трубы35-85 см Объём залпового сброса220 л Потребляемая электроэнергия1,0-1,5 кВт*сут
Вес250 кг
Габариты1,15 / 1,17 / 2,4 м д / ш / в
Гарантия на корпус установки ТОПАС 5 под ключ с установкой – 10 лет Гарантия на компрессорное оборудование – 3 года (комплект сменной мембраны в подарок)
185600
руб.
Подробнее
Купить

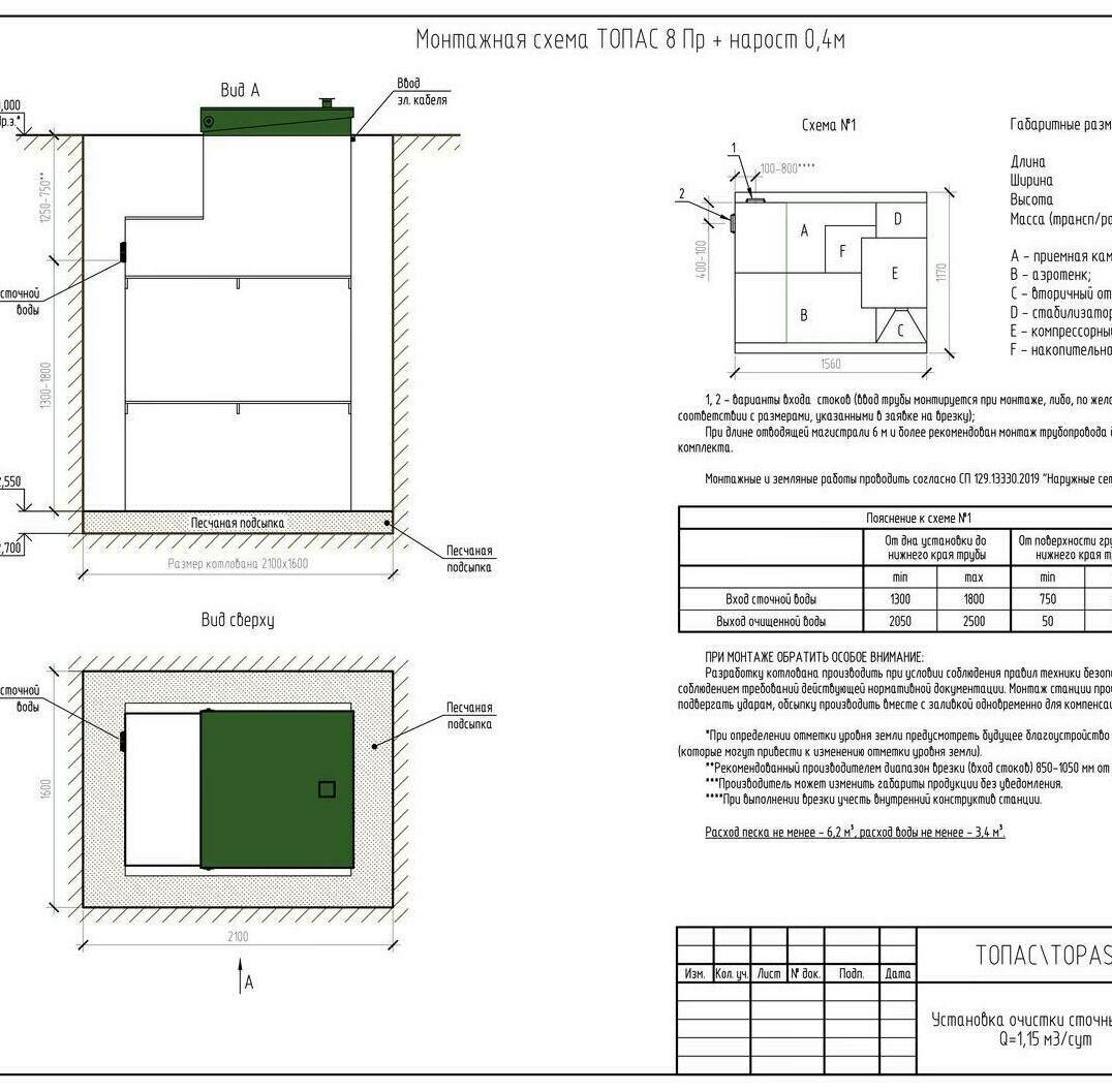
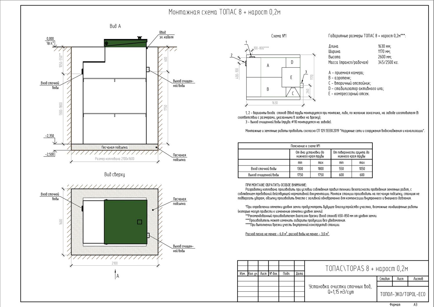
Автономная канализация ТОПАС 8
Производительность1,5 м3/сутки Количество пользователей≈8 человек
Глубина залегания трубы35-85 см Объём залпового сброса440 л Потребляемая электроэнергия1,0-1,5 кВт*сут
Вес335 кг
Габариты Длина 1,63 м, ширина 1,17 м, высота 2,4 м
Гарантия на корпус септика ТОПАС 8 – 10 летГарантия на компрессорное оборудование – 3 года (комплект сменной мембраны в подарок)
сание217900
руб.
Подробнее
Купить
| Модель | Количество условных пользователей | Залповый сброс*,л | Производительность, м3/сут | Потребляемая мощность, кВт/сут | Цена |
| Автономная канализация ТОПАС 4 | 4 | 175 | 0,8 м3/сут | 1-1,5 | 158 600 р. |
| Автономная канализация ТОПАС 4 Пр | 4 | 175 | 0,8 м3/сут | 1,2-1,6 | 177 200 р. |
| Автономная канализация ТОПАС 5 | 5 | 220 | 1,0 м3/сут | 1-1,5 | 185 600 р. |
| Автономная канализация ТОПАС 5 Лонг | 5 | 220 | 1,0 м3/сут | 1-1,5 | 217 600 р. |
| Автономная канализация ТОПАС 5 Пр | 5 | 220 | 1,0 м3/сут | 1,2-1,6 | 202 600 р. |
| Автономная канализация ТОПАС 5 Лонг Пр | 5 | 220 | 1,0 м3/сут | 1,2-1,6 | 231 400 р. |
| Автономная канализация ТОПАС 6 | 6 | 250 | 1,15 м3/сут | 1-1,5 | 187 000 р. |
| Автономная канализация ТОПАС 6 Пр | 6 | 250 | 1,15 м3/сут | 1,2-1,6 | 204 000 р. |
| Автономная канализация ТОПАС 6 Лонг | 6 | 250 | 1,15 м3/сут | 1-1,5 | 218 000 р. |
| Автономная канализация ТОПАС 6 Лонг Пр | 6 | 250 | 1,15 м3/сут | 1,2-1,6 | 232 400 р. |
| Автономная канализация ТОПАС 8 | 8 | 440 | 1,5 м3/сут | 1-1,5 | 217 900 р. |
| Автономная канализация ТОПАС 8 Лонг | 8 | 440 | 1,5 м3/сут | 1-1,5 | 254 300 р. |
| Автономная канализация ТОПАС 8 Пр | 8 | 440 | 1,5 м3/сут | 1,2-1,6 | 233 900 р. |
| Автономная канализация ТОПАС 8 Лонг Ус | 8 | 440 | 1,5 м3/сут | 1-1,5 | 300 300 р. |
| Автономная канализация ТОПАС 8 Лонг Пр | 8 | 440 | 1,5 м3/сут | 1,2-1,6 | 264 500 р. |
| Автономная канализация ТОПАС 8 Лонг Пр Ус | 8 | 440 | 1,5 м3/сут | 1,2-1,6 | 320 100 р. |
ВЫЕЗД ИНЖЕНЕРА ДЛЯ ПОДБОРА ОБОРУДОВАНИЯ БЕСПЛАТНО
Контактная информация
- Тюменская область, Тюменский р-он, п. Боровский, ул. Герцена, 52, 3 этаж
- +7 (991) 909-65-80
- septic.72@mail.ru
- Отдел сервисного и гарантийного обслуживания, п. Боровский, Герцена, 52
- +7 (932) 485-95-57
- neon.tyumen@mail.ru
Корзина пуста
0
шт.
/
0 руб.
Оформить
Очистить









































