Большой опыт
АКВА-МАСТЕР
ОБОРУДОВАНИЕ ДЛЯ ЗАГОРОДНОГО ПРОЖИВАНИЯ
Справедливые цены
Гарантийный сервис
Монтаж за 1 день
АКЦИИ И СКИДКИ
СТАНЦИИ ТОПАС-С
ТОПАС-С - УСТАНОВКА ОЧИСТКИ СТОЧНЫХ ВОД (УОСВ) ДЛЯ ЗАГОРОДНОГО ДОМА, ДАЧИ, КОТТЕДЖА, ПОДХОДИТ ДЛЯ СЕЗОННОГО ПРОЖИВАНИЯ (ОДИН КОМПРЕССОР)
Установка очистки сточных вод «ТОПАС-С» - одно из лучших решений для загородной канализации. В основе её работы лежит гибридный метод, сочетающий биологическую и механическую очистку стоков. На выходе они становятся прозрачными, отсутствует неприятный запах.
Модельный ряд УОСВ «ТОПАС-С» имеет следующие отличия от модельного ряда УОСВ «ТОПАС»: установлен один компрессор, переключение циклов в станции происходит путем перенаправления воздушного потока распределительным клапаном.
Вне зависимости от выбранной Вами модели УОСВ «ТОПАС» или «ТОПАС-С» производитель ООО ПО «ТОПОЛ-ЭКО» предоставляет бесплатно ремонтный комплект для каждого компрессора, установленного в УОСВ и гарантирует качество выпускаемой продукции.
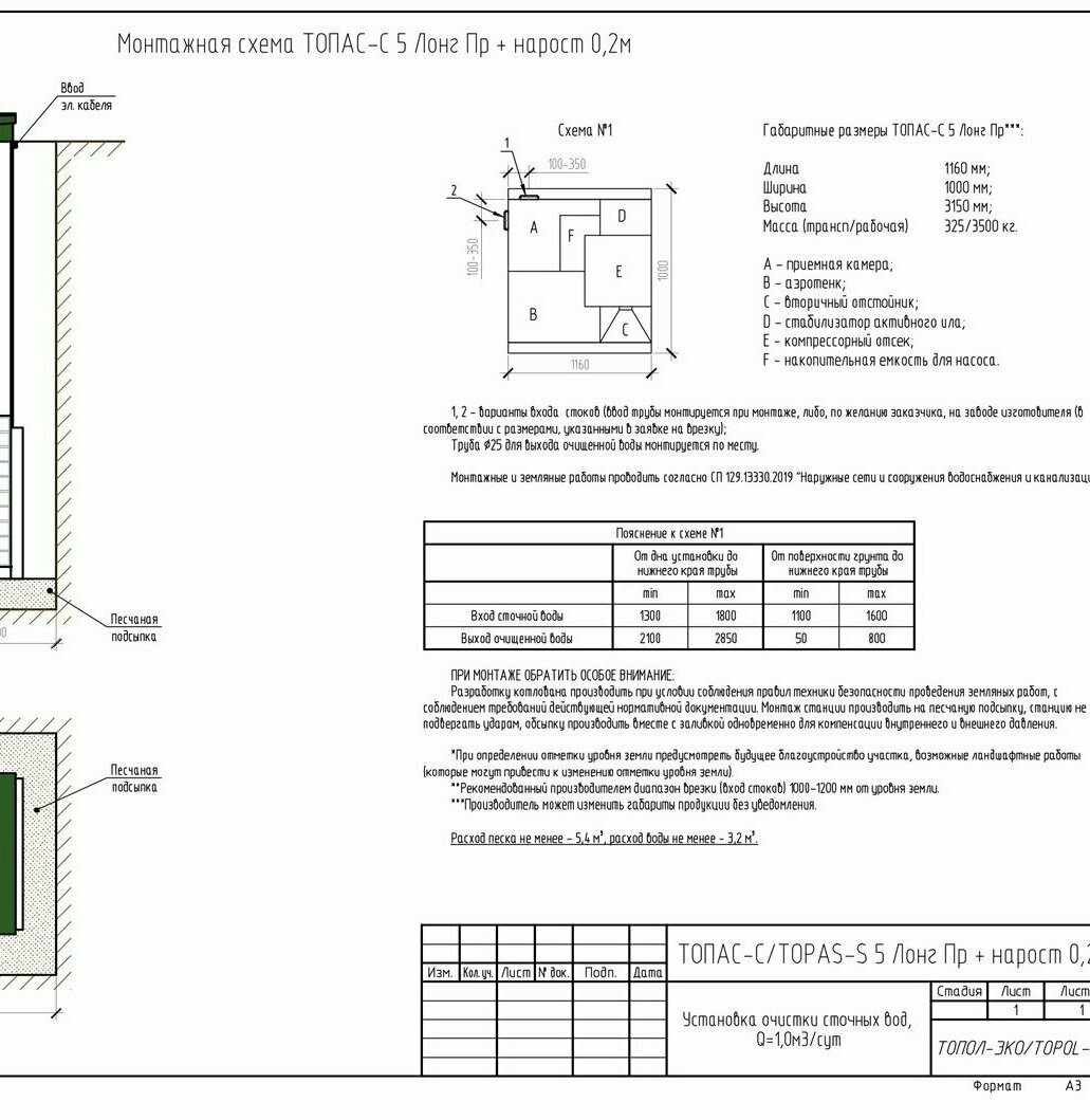
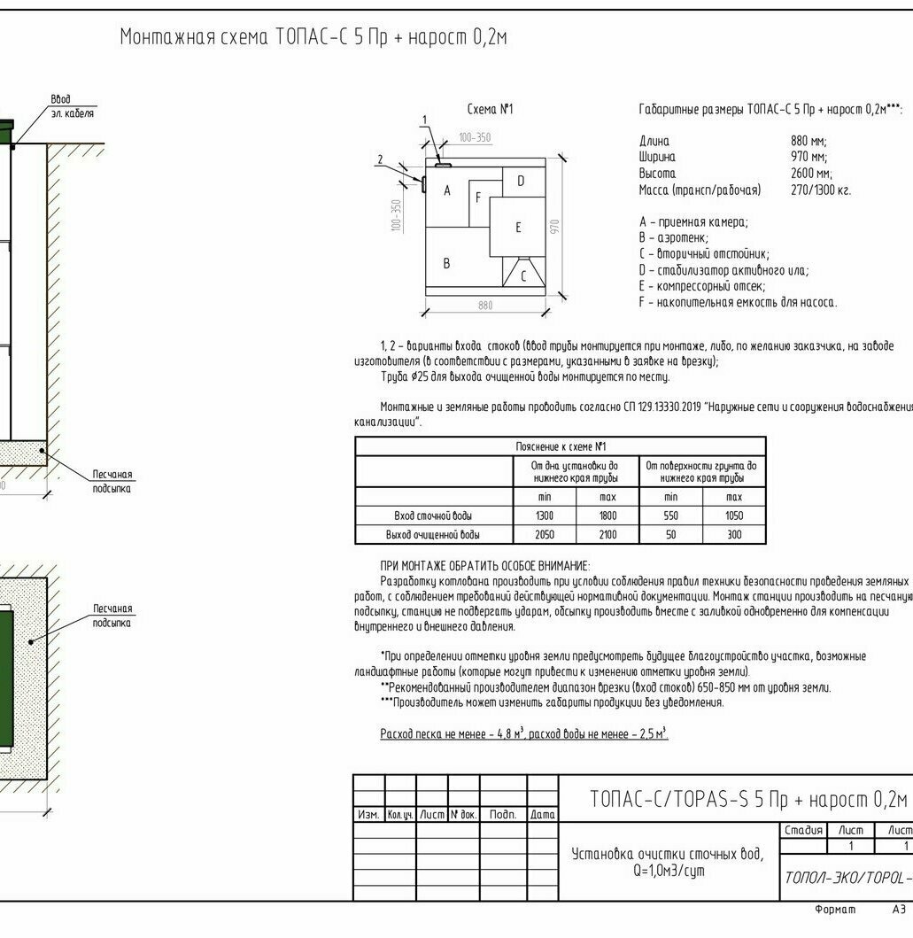
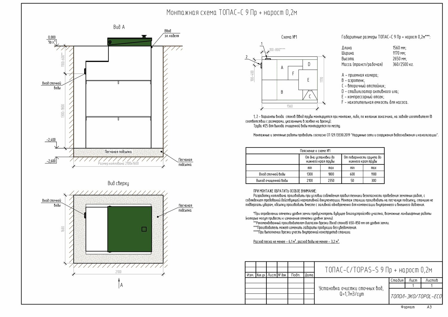
Пр – установка со встроенным насосом принудительного отвода очищенного стока. Применяется для участков с высоким уровнем грунтовых вод.
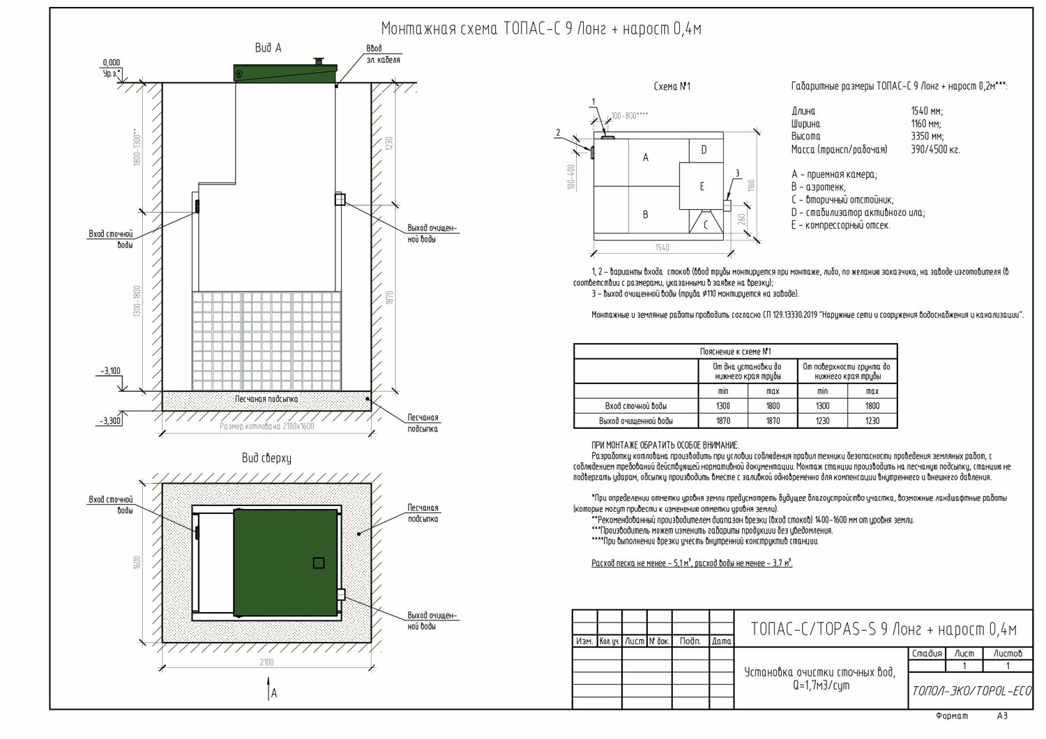
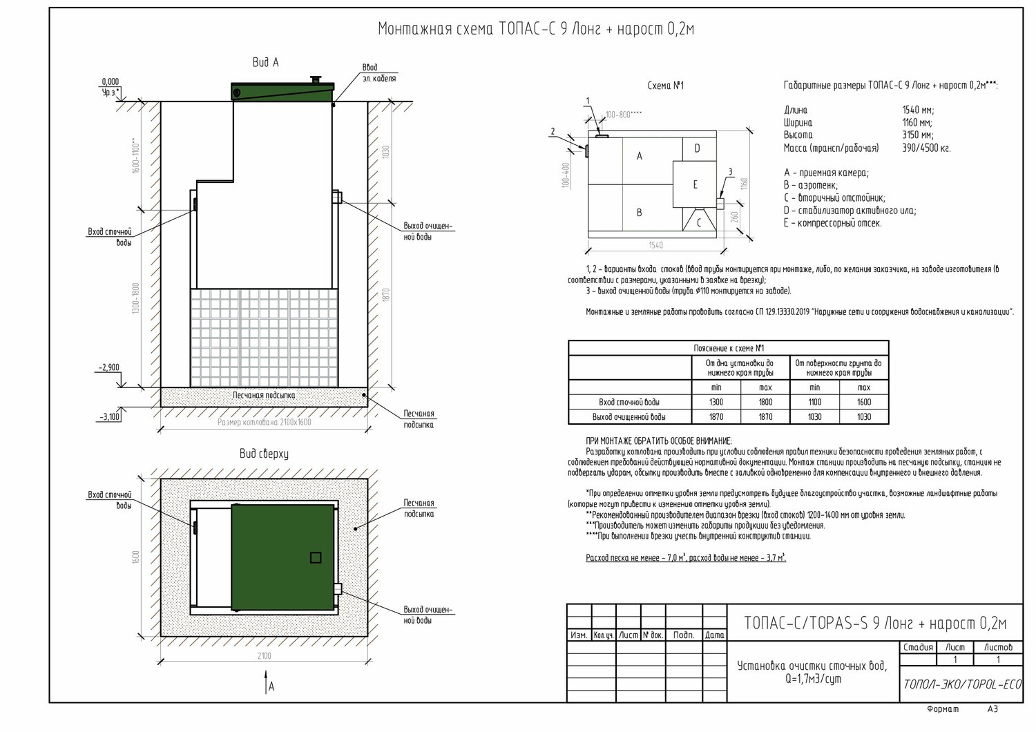
Лонг – установка с удлиненной горловиной (имеет врезной диапазон больше, чем стандартные станции). Применяется, когда канализационная труба, выходящая из здания, залегает на глубине свыше 85 см от поверхности грунта.
Ус – установка с дополнительным усилением корпуса (имеет врезной диапазон больше, чем станции модификации Лонг). Применяется для участков с высоким давлением грунта и в случаях, когда канализационная труба, выходящая из здания, залегает на глубине свыше 140 см от поверхности грунта.
Если в вашем загородном доме, в коттедже или на даче проживают от 1 до 4 человек, а из сантехники установлены душевая кабина, унитаз и две раковины, то Вам подойдет установка ТОПАС-С 4. Это система автономной канализации, предназначенная для круглогодичного или сезонного использования. Максимальный единовременный прием стоков, то есть тот объем воды, который ТОПАС-С 4 может принять в течение короткого промежутка времени, составляет 175 литров. Степень очистки сточной воды составляет 98%.
ТОПАС-С 4 — аэрационная установка для очистки сточных вод в условиях отсутствия центральной канализации. Механизм действия установки основан на методе глубокой биологической очистки. Полученная вода может использоваться для полива газона или деревьев. Отработанный ил удаляется из станции один раз в 3-4 месяца с помощью насоса, помещается в компостную яму и после компостирования используется в качестве удобрения.


Автономная канализация ТОПАС-С 4
Производительность0,8 м3/сутки
Количество пользователей≈4 человека
Глубина залегания трубы35-85 см
Объём залпового сброса175 л
Потребляемая электроэнергия45-65 Вт/ч. 1,0-1,5 кВт*сут
Вес205 кг
Габариты0,95 / 0,97 / 2,4 д / ш / в
Гарантия на корпус очистного сооружения – 7 лет
142200
руб.
Подробнее
Купить

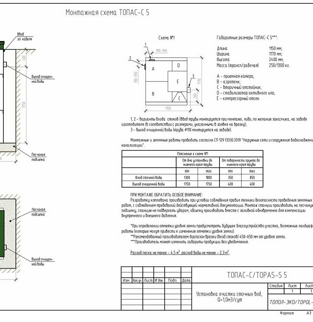
Автономная канализация ТОПАС-С 5
Производительность1,0 м3/сутки
Количество пользователей≈5 человек Глубина залегания трубы35-85 см
Объём залпового сброса220 л
Потребляемая электроэнергия1,0-1,5 кВт*сут Вес245 кг
Габариты1,15 / 1,17 / 2,4 д / ш / в
Гарантия на корпус очистного сооружения – 7 летраткое описание
167000
руб.
Подробнее
Купить

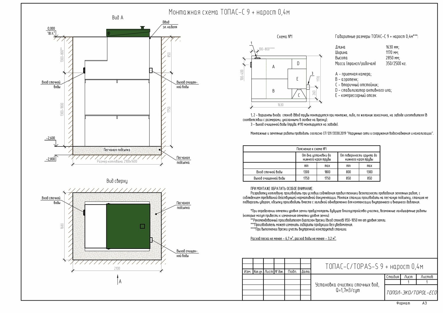
Автономная канализация ТОПАС-С 9
Производительность1,7 м3/сутки
Количество пользователей≈9 человек Глубина залегания трубы40-90 см
Объём залпового сброса510 л
Потребляемая электроэнергия1,0-1,5 кВт*сут Вес335 кг
Габариты1,63 / 1,17 / 2,45 д/ш/в
Гарантия на корпус очистного сооружения – 7 лет
201900
руб.
Подробнее
Купить
| Модель | Количество условных пользователей | Залповый сброс*,л | Производительность, м3/сут | Потребляемая мощность, кВт/сут | Цена |
| Автономная канализация ТОПАС-С 4 | 4 | 175 | 0,8 м3/сут | 1-1,5 | 142 200 р. |
| Автономная канализация ТОПАС-С 4 Пр | 4 | 175 | 0,8 м3/сут | 1,2-1,6 | 155 600 р. |
| Автономная канализация ТОПАС-С 5 | 5 | 220 | 1,0 м3/сут | 1-1,5 | 167 000 р. |
| Автономная канализация ТОПАС-С 5 Лонг | 5 | 220 | 1,0 м3/сут | 1-1,5 | 194 600 р. |
| Автономная канализация ТОПАС-С 5 Пр | 5 | 220 | 1,0 м3/сут | 1,2-1,6 | 183 200 р. |
| Автономная канализация ТОПАС-С 5 Лонг Пр | 5 | 220 | 1,0 м3/сут | 1,2-1,6 | 204 600 р. |
| Автономная канализация ТОПАС-С 6 | 6 | 250 | 1,15 м3/сут | 1-1,5 | 169 800 р. |
| Автономная канализация ТОПАС-С 6 Лонг | 6 | 250 | 1,15 м3/сут | 1-1,5 | 196 400 р. |
| Автономная канализация ТОПАС-С 6 Пр | 6 | 250 | 1,15 м3/сут | 1,2-1,6 | 186 400 р. |
| Автономная канализация ТОПАС-С 6 Лонг Пр | 6 | 250 | 1,15 м3/сут | 1,2-1,6 | 213 400 р. |
| Автономная канализация ТОПАС-С 8 | 8 | 440 | 1,5 м3/сут | 1-1,5 | 199 900 р. |
| Автономная канализация ТОПАС-С 8 Пр | 8 | 440 | 1,5 м3/сут | 1,2-1,6 | 210 900 р. |
| Автономная канализация ТОПАС-С 8 Лонг Пр | 8 | 440 | 1,5 м3/сут | 1,2-1,6 | 242 700 р. |
| Автономная канализация ТОПАС-С 8 Лонг Ус | 8 | 440 | 1,5 м3/сут | 1-1,5 | 274 500 р. |
| Автономная канализация ТОПАС-С 8 Лонг Пр Ус | 8 | 440 | 1,5 м3/сут | 1,2-1,6 | 290 100 р. |
| Автономная канализация ТОПАС-С 9 | 9 | 510 | 1,7 м3/сут | 1-1,5 | 201 900 р. |
| Автономная канализация ТОПАС-С 9 Лонг | 9 | 510 | 1,7 м3/сут | 1-1,5 | 235 500 р. |
| Автономная канализация ТОПАС-С 9 Лонг Ус | 9 | 510 | 1,7 м3/сут | 1-1,5 | 278 900 р. |
| Автономная канализация ТОПАС-С 9 Пр | 9 | 510 | 1,7 м3/сут | 1,2-1,6 | 216 100 р. |
| Автономная канализация ТОПАС-С 9 Лонг Пр | 9 | 510 | 1,7 м3/сут | 1,2-1,6 | 245 600 р. |
| Автономная канализация ТОПАС-С 9 Лонг Пр Ус | 9 | 510 | 1,7 м3/сут | 1,2-1,6 | 294 300 р. |
| Автономная канализация ТОПАС-С 10 | 10 | 760 | 2,0 м3/сут | 2 | 270 600 р. |
| Автономная канализация ТОПАС-С 10 Лонг | 10 | 760 | 2,0 м3/сут | 2 | 305 200 р. |
| Автономная канализация ТОПАС-С 10 Лонг Ус | 10 | 760 | 2,0 м3/сут | 2 | 359 400 р. |
| Автономная канализация ТОПАС-С 10 Пр | 10 | 760 | 2,0 м3/сут | 1-1,5 | 284 000 р. |
| Автономная канализация ТОПАС-С 10 Лонг Пр | 10 | 760 | 2,0 м3/сут | 1-1,5 | 318 400 р. |
| Автономная канализация ТОПАС-С 10 Лонг Пр Ус | 10 | 760 | 2,0 м3/сут | 1-1,5 | 381 600 р. |
ВЫЕЗД ИНЖЕНЕРА ДЛЯ ПОДБОРА ОБОРУДОВАНИЯ БЕСПЛАТНО
ВЫЕЗД ИНЖЕНЕРА ДЛЯ ПОДБОРА ОБОРУДОВАНИЯ
Контактная информация
- Тюменская область, Тюменский р-он, п. Боровский, ул. Герцена, 52, 3 этаж
- +7 (991) 909-65-80
- septic.72@mail.ru
- Отдел сервисного и гарантийного обслуживания, п. Боровский, Герцена, 52
- +7 (932) 485-95-57
- neon.tyumen@mail.ru
Корзина пуста
0
шт.
/
0 руб.
Оформить
Очистить































